STOPITE V KONTAKT Z NAMi!

Uporabite lahko obrazec na desni, pišete nam lahko na info@gartner-a.com ali pa nas pokličite na eno izmed telefonskih številk:

Jernej Gartner / 041 834 696
Brigita Gartner / 041 283 453

Najlepša hvala!
 

13 Brnčičeva ulica
Ljubljana - Črnuče, Ljubljana, 1231
Slovenia

+38641834696

Arhitekturno projektiranje javnih in privatnih objektov vseh velikosti s poudarkom na farmacevtski industriji in visokokakovostnih večstanovanjskih objektov in hiš, notranje opreme in poslovnih prostorov.

NOVICE_thumbnail_p42.jpg

Hiša P42

Enostanovanjska hiša v naselju Pameče

 V naselju Pameče, Slovenj Gradec, smo na lokaciji predhodno odstranjenega stanovanjskega objekta, zasnovali novo hišo namenjeno paru srednjih let.

 Zaradi goste pozidanosti in bližine ceste na severu in zahodu ter padajočega terena, se glavni pogledi odpirajo na jug in vzhod proti dolini. Osnovni objekt je zasnovan kot enostaven kubus s simetrično dvokapnico, kateremu domačno noto dodaja element lesenega nadstreška, ki se subtilno in funkcionalno vije okoli treh stranic. Na ta način smo razbili monotonost osnovnega objekta, hkrati pa uokvirili ter usmerili poglede na dolino.

Gradbeni materiali uporabljeni pri gradnji in zasnovi objekta so kombinacija AB in lesa, kar se ponovi tudi na fasadi, kjer je uporabljen omet svetlo sive barve z lesenimi poudarki. Vhod v objekt se nahaja na zahodni strani, medtem ko so dostop na parcelo ter parkirne in manipulativne površine predvidene na severnem delu.

... domačno noto dodaja element lesenega nadstreška, ki se subtilno in funkcionalno vije okoli treh stranic.

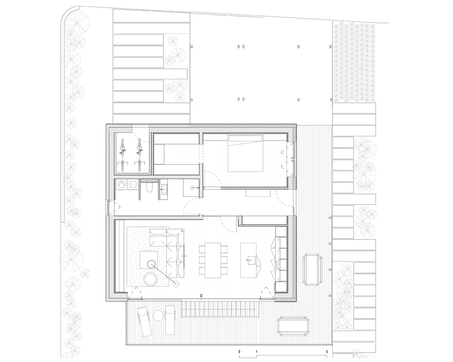
TLORISNA ZASNOVA

 Hiša je pritlična s kletno etažo. V pritličju so predvideni vsi bivalni prostori medtem, ko je klet namenjena izključno tehničnim in shrambnim prostorom.  Na severu so predvideni prostori spalnice ter kopalnica, vetrolov in kolesarnica. Najlepši pogledi proti dolini so narekovali zasnovo dnevne sobe ter kuhinje v južnem delu objekta, ki prehajata v zunanji pokrit balkon, ki zalebdi nad terenom.

Tloris pritličja

Tloris pritličja

Prečni prerez

Prečni prerez


RAZVOJ PROJEKTA OD IDEJE DO IZVEDBE

Kot vsak vsaka ideja, se je tudi zasnova objekta skozi različne faze projektiranja razvijala in izčiščevala od prvega prebliska ob prebiranju projektne naloge do končne podobe, ki je šla v izvedbo. V prvi fazi je bila predvidena dvostanovanjska stavba z dvema etažama in mansardo, v svoji končni obliki pa je nastala enostanovanjska pritlična stavba.

FAZA 1 - Dvostanovanjska stavba; pogled na vhodni del

FAZA 1 - Dvostanovanjska stavba; pogled na vhodni del

FAZA 2 - Enostanovanjska stavba; pogled na vhodni del

FAZA 2 - Enostanovanjska stavba; pogled na vhodni del

FAZA 1 - Dvostanovanjska stavba; pogled proti južni fasadi

FAZA 1 - Dvostanovanjska stavba; pogled proti južni fasadi

FAZA 2 - Enostanovanjska stavba; pogled proti južni fasadi

FAZA 2 - Enostanovanjska stavba; pogled proti južni fasadi

FAZA 1 - Dvostanovanjska stavba; interier

FAZA 1 - Dvostanovanjska stavba; interier

FAZA 2 - Enostanovanjska stavba; interier

FAZA 2 - Enostanovanjska stavba; interier