Hiša Mengeš
Enodružinska hiša v Mengšu - grafično gradivo
POVEZAVA DO PROJEKTA
Hiša Mengeš - vizualizacija
Pogled iz severa na dovoz in glavni vhod v hišo.
Hiša Mengeš - vizualizacija
Pogled iz juga proti vrtu in bivalnim prostorom enodružinske hiše.
Hiša Mengeš - vizualizacija
Pogled proti hiši iz dovozne poti na severni strani parcele.
Hiša Mengeš - vizualizacija
Pogled iz vzhoda proti dovozu in glavnemu vhodu.
3D tloris pritličja
Tloris pritličja hiše v Mengšu
3D tloris mansarde
Tloris mansarde hiše v Mengšu
3D prerez
3D prečni prerez omogoča boljšo predstavo, pregledovanje in odkrivanje napak med projektiranjem.
3D prerez
3D prečni prerez omogoča boljšo predstavo, pregledovanje in odkrivanje napak med projektiranjem.
3D prerez
3D prečni prerez omogoča boljšo predstavo, pregledovanje in odkrivanje napak med projektiranjem.
3D objekt
3D pogled na hišo iz vrta proti atriju.
3D objekt - vhodni del
Pogled na objekt s severo-zahoda proti glavnemu vhodu in dovozu.
3D objekt - vzhod
Pogled na hišo iz severo-vzhoda proti vzhodni stranici in dovozu na severni strani hiše.
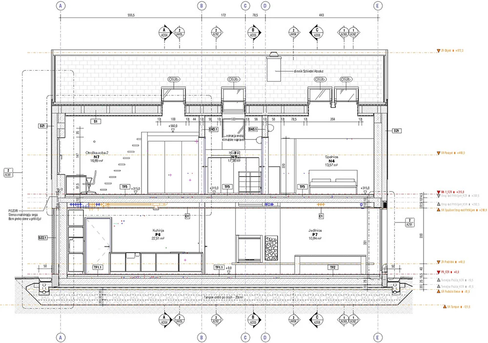
Hiša Mengeš - vzdolžni prerez
Vzdolžni prerez, generiran iz BIM modela.
Hiša Mengeš - detajl dimnika
Detajlni prerez preko dimnika, generiran iz BIM modela.
Hiša Mengeš - fasadni pas
Fasadni pas, generiran iz BIM modela
Hiša Mengeš - shema stavbnega pohištva
Shema stavbnega pohištva, vezana na BIM model, pripravljena za pridobitev ponudbe.
Hiša Mengeš - shema stavbnega pohištva
Shema stavbnega pohištva, vezana na BIM model, pripravljena za pridobitev ponudbe.
Hiša Mengeš - tloris temeljev
Tloris temeljev z inštalacijami, generiran iz 3D BIM modela.
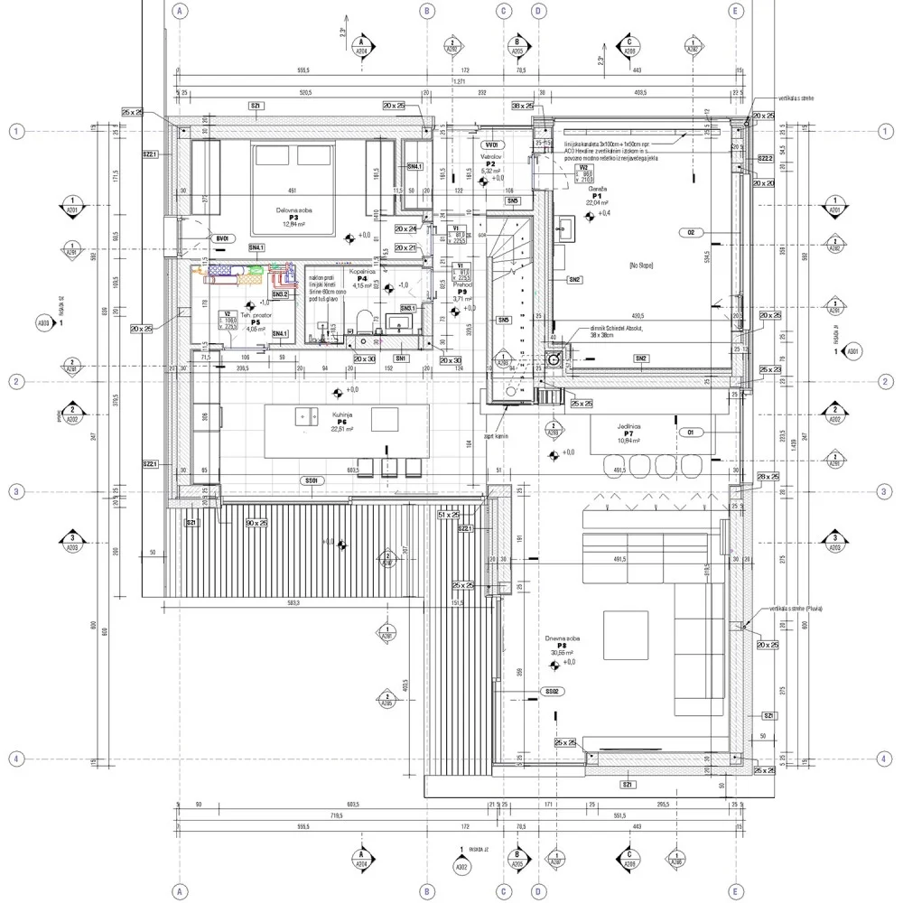
Hiša Mengeš - tloris pritličja
Tloris pritličja z inštalacijami, generiran iz 3D BIM modela.
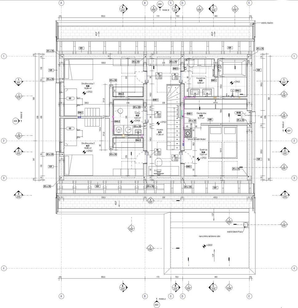
Hiša Mengeš - tloris mansarde
Tloris mansarde z inštalacijami, generiran iz 3D BIM modela.
Hiša Mengeš - inštalacije
Prerezi preko prebojev inštalacij za lažje razumevanje in natančnejšo izvedbo, generirani iz 3D BIM modela.
Hiša Mengeš - 3D ostrešje
3D ostrešje iz BIM modela v dogovoru z izvajalcem ostrešja za natančen razrez elementov.
Hiša Mengeš - 3D konstrukcija
3D konstrukcija in inštalacije v različnih fazah izvedbe.
Hiša Mengeš
Enodružinska hiša v Mengšu - grafično gradivo
POVEZAVA DO PROJEKTA